【外観】
- 物件名
- 柏市西柏台2丁目 中古戸建 平成6年築
- 価格
- 2,180万円
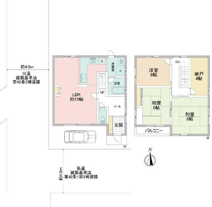
- 建物面積
- 93.82㎡
- 土地面積
- 26.01坪(86.00㎡)
- 築年月
- 1994年9月(築31年)
- 総戸数
- -
- 設備条件
-
- 閑静な住宅地
- 設備(その他)
-
-
-
- 駐車場/月額
- 有(1台)/0円
- 土地権利
- 所有権
- 国土法届出
- 不要
- 用途地域
- 第一種低層住居専用
- 取引態様
- 仲介
- 引渡し
- 相談
-
ドラッグストア
ゆずのき薬局
284m(4分)
-
インテリア
ヤサカ柏西原店
398m(5分)
-
ファミリーレストラン
ガスト 流山駒木店
565m(8分)
-
コンビニエンスストア
セブンイレブン流山東初石3丁目店
592m(8分)
-
駅
初石駅
1230m(16分)
-
総合病院
柏の葉北総病院
1778m(23分)
-
駅
流山おおたかの森駅
1862m(24分)
-
郵便局
柏みどり台郵便局
2169m(28分)
柏市西柏台2丁目 中古戸建 平成6年築の基本情報
柏市西柏台2丁目 中古戸建 平成6年築の詳細情報
柏市西柏台2丁目 中古戸建 平成6年築で募集中の物件
周辺施設
近隣の物件
よく見られている物件
柏市西柏台2丁目 中古戸建 平成6年築










